間取りプラン
  • TOP
  • 間取りプラン
  • 涌井設計のわくわくホーム|新築住宅を上尾、伊奈、桶川、北本、鴻巣で建てるなら

リモートワークにぴったり♪ パパとママに優しいお家

このプランの見どころポイント!


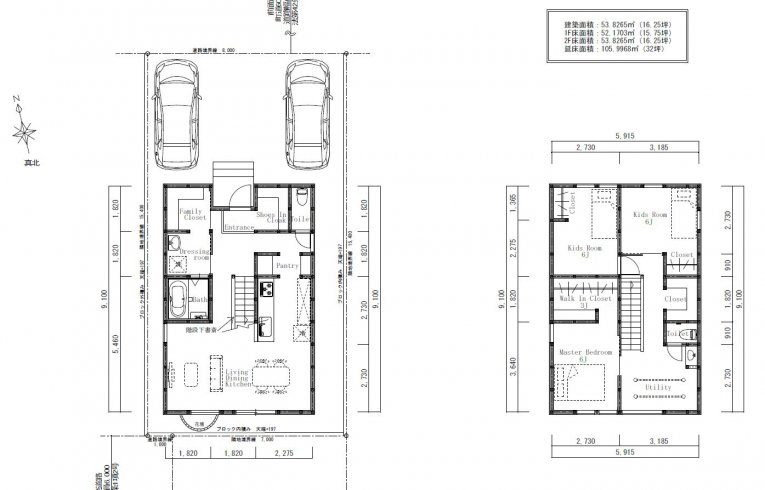
〇リビングに入る前に手洗いを促せる間取り
玄関入って左側がシューズクローク
右側がファミリークローク→洗面所


〇玄関近くにパントリー
たくさん食材を購入して帰ってきても直ぐに収納できます。


階段下は書斎スぺース
秘密基地のようなわくわくするスペース♪

個室まではいらないけど、リビングと程よい距離の作業スペースが欲しいという方におすすめ♪


〇2階にファミリークロークあり
こもれる書斎が欲しい方はここを書斎にしても◎


〇お庭に砂場スペースあり
ご希望ございましたら、お子様の砂場スペースやガーデニングスペースを作ることも可能ですのでご相談くださいませ♪



 

坪数 32坪 延床
面積
106m²
間取り 3LDK 家族
構成
2-4人

閉じる

×閉じる