間取りプラン
  • TOP
  • 間取りプラン
  • | 涌井設計のわくわくホーム|新築住宅を上尾、伊奈、桶川、北本、鴻巣で建てるなら

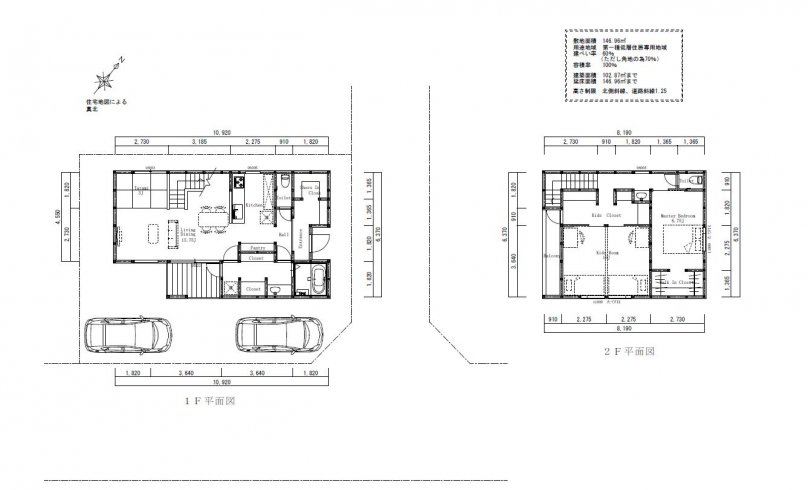
使い方様々♪ ウッドデッキのある仲良し家族のお家

このプランの見どころポイント!


○広々土間スペース
家族みんなでお出かけする際、お支度しやすい♪


〇リビングを確認しながらキッチンで作業できる間取り
キッチン横にパントリーあり


階段下はオープンにし開放感アップ
収納スペース、畳スペースなど階段下の使い方は
ご家族のライフスタイルにあわせご提案させていただきます!



○広々洗面、ファミリークローク


○リビング、洗面所両方から出入りできるウッドデッキスペース
★洗濯スペース、気候の良い日はバーベキューなど活用方法はご家族次第♪



〇個室収納もきちんと確保☆
 

坪数 33.5坪 延床
面積
110.9654m²
間取り 3LDK 家族
構成
2-4人

閉じる

×閉じる