間取りプラン
  • TOP
  • 間取りプラン
  • | 涌井設計のわくわくホーム|新築住宅を上尾、伊奈、桶川、北本、鴻巣で建てるなら

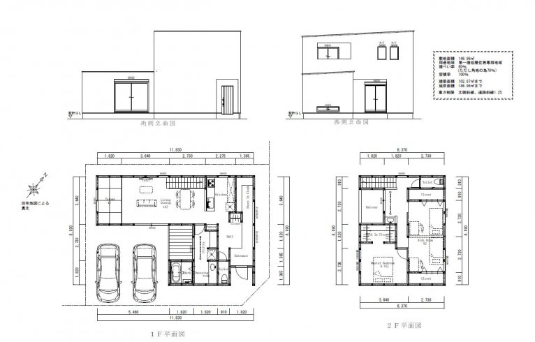
広々土間収納が嬉しい♪ 敷地をうまく使ったスタイリッシュでオシャレなお家

このプランの見どころポイント!


〇広々エントランス
自転車がお好きな方、小さなお子様がいらっしゃる方には、
ベビーカーなどそのまま入ることができるのでおすすめ♪

○キッチンからダイニング→リビング→和室
一直線になっているので、確認しながら作業していただけます♪


○広々洗面所家事スペース(ファミリークロークとしても◎)
★ウッドデッキにそのまま出られ、洗濯動線バッチリ!


〇忙しい奥様に人気のインナーバルコニー仕様
室内には室内干しスペースあり



お家にいることが多い方、小さなお子様がいらっしゃる方に特にお勧めしたい人気のプランです!
 

坪数 35.25坪 延床
面積
116.76m²
間取り 3LDK 家族
構成
2-4人

閉じる

×閉じる