間取りプラン

対面キッチンで会話が弾む♪家族が集う楽しいお家

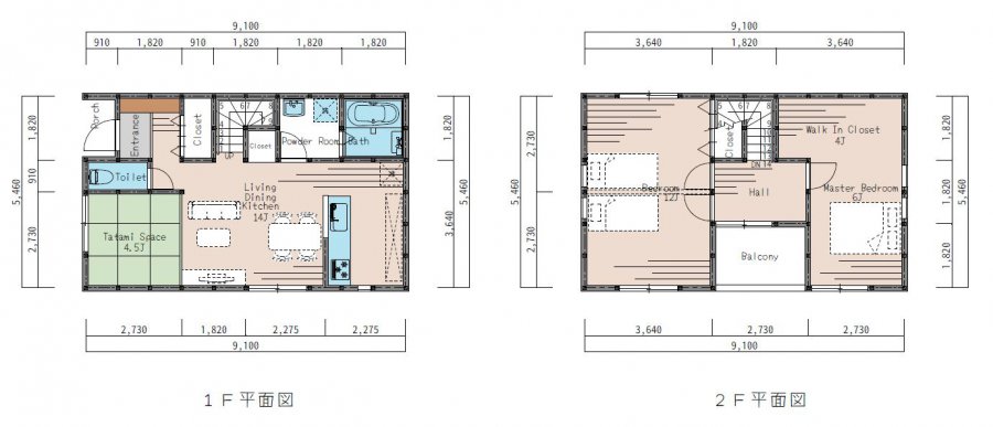
おすすめポイント

○エントランスに収納あり
コートや傘などお出かけの際に身に着けるものを収納するのにとても便利♪
掃除機など日用品収納としても◎



○キッチン、ダイニングテーブル、リビング、和室が一直線上になっており、料理をしながらお部屋の全体をすぐに確認できるのが魅力的なプランです♪


〇雨の日でも安心なインナーバルコニー
夫婦寝室から直接バルコニーに行けるようにすることも可能です♪


将来分けられる子ども部屋
お子様の成長に合わせて、仕切って2部屋としてお使いいただくことが可能です♪



これから家族が増えるかも知れないという方におすすめの家事動線が考えられた人気のプランです!!

坪数 28坪 延床
面積
92.75m²
間取り 2LDK(3LDK) 家族
構成
3-4人

閉じる

×閉じる