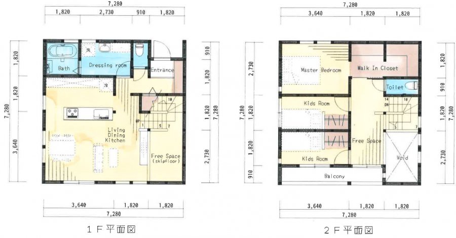
間取りプラン

くるり廻れるキッチンで心が弾む楽しいお家

このプランの見どころポイント!


広々洗面

★物干しを付けて、室内干しスペースとしても◎


〇くるり廻れるアイランドキッチン


キッチン・洗面等が一カ所に

★あちこち行かなくて済むので時短に!


〇スキップフロアのフリースペース

上部が吹き抜けになっているので開放感があります。
階段の途中を有効活用してお気に入りの空間を演出してみては



〇主寝室には大人気のウォークインクローゼット

★お部屋で荷物があふれかえる心配がなくなり、すっきりした印象に



視線の抜けを工夫し、明るい印象を与えてくれるプランです。

坪数 28.5坪 延床
面積
94.4m²
間取り 3LDK 家族
構成
3-4人

閉じる

×閉じる