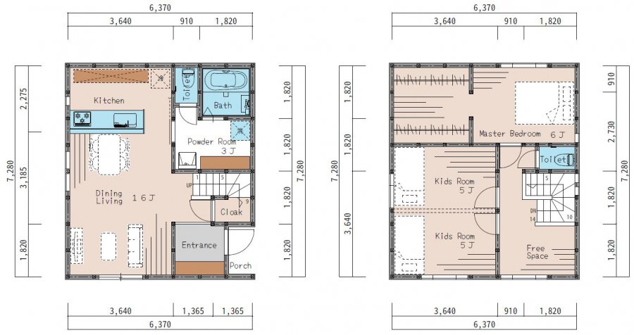
間取りプラン

ゆったりな洗面が嬉しい♪仲良し家族のかわいいお家

このプランの見どころポイント!


〇玄関が凹んでいるプランなので、後からひさしをつける必要なし


広々洗面

★忙しい朝も、みんな並んで歯磨きできちゃう


〇階段下に収納

掃除機や日用品がしまえて便利


水回りがひとまとまりに♪

★行ったり来たりせず、家事がスムーズ


フリースペース

ギターを弾いたりトレーニングをしたり・・・
お子さまと遊ぶ部屋にしても◎



〇主寝室には大人気のウォークインクローゼット

★お部屋で荷物があふれかえる心配がなくなりスッキリ!



家事動線にこだわりたい、コンパクトに賢く建てたい方に人気のプランです



 

坪数 27.5坪 延床
面積
91.09m²
間取り 2-3LDK 家族
構成
2-4人

閉じる

×閉じる