間取りプラン

家時間が心地よい♪収納たっぷりママが嬉しいお家

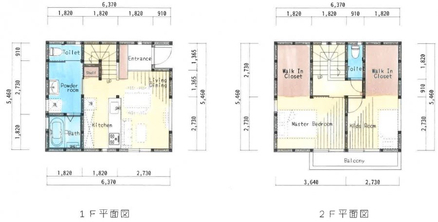
このプランの見どころポイント!


〇玄関が凹んでいるプランなので、後から雨除け用のひさしを付ける必要がありません♪

〇キッチンの背面に水回りをギュッと近くにまとめて
家事動線をスムーズ
 
〇階段下の収納はリビング収納・パントリーとしてお使いいただけます♪


〇主寝室にも子供部屋にも大人気のウォークインクローゼット

☆ご希望ございましたら、枕棚とパイプハンガーも設置可能です
お部屋に荷物があふれかえる心配がなくスッキリとした印象になります。

2階にもトイレあり
(不要な方は収納スペースやコンパクトな書斎としてもお使いいただけます♪)


☆建売住宅の場合、
収納はあるけどリビングから離れた家の隅に
奥行きが広く使いづらい収納が多い…
そんなお声が多かったので、
こちらは注文住宅ならではの
収納の位置にこだわったプランになっております♪


なぜかいつも家が散らかってしまう…
たっぷり使いやすい収納が欲しい!
という方におすすめのプランです♪

坪数 21坪 延床
面積
20.63m²
間取り 2LDK 家族
構成
2-3人

閉じる

×閉じる