間取りプラン
  • TOP
  • 間取りプラン
  • | 涌井設計のわくわくホーム|新築住宅を上尾、伊奈、桶川、北本、鴻巣で建てるなら

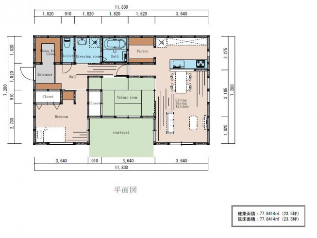
【平屋】お庭を囲む 会話の弾む楽しい平屋のお家

このプランの見どころは
何と言ってもお家の中心に造られた


お家をコの字に建て、お庭をプライベート空間に♪
一気に上質な空間に

お隣との距離が近い、大きな道路に面している敷地の方に
とてもお勧めです!!


パントリー、シューズクローク
無駄な廊下を極力なくしているので、
空間に余裕があり、あると便利な収納スペースを設けております♪



物干しスペースとしてお使いになるのはもちろん、
いすなどを置いてここで朝食を取るのも最高ですね!



平屋が良いけど、収納もワンフロアで充実させたい!と思っている方に人気のプランです!

坪数 23.5坪 延床
面積
77.8414m²
間取り 2LDK 家族
構成
二人暮らし

閉じる

×閉じる