間取りプラン
  • TOP
  • 間取りプラン
  • | 涌井設計のわくわくホーム|新築住宅を上尾、伊奈、桶川、北本、鴻巣で建てるなら

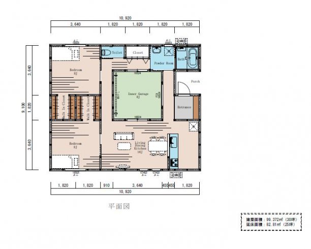
【平屋】柔らかい光が注ぎ 贅沢な暮らしのできる平屋のお家

このプランの見どころは
何と言ってもお家の中心に造られた
中庭

プライベート空間ができるので、一気に上質な空間に
お隣との距離が近い、大きな道路に面している敷地の方に
とてもお勧めです!!

今回は中庭を一周くるりと回れる回遊プランとなっております♪



中庭
物干しスペースとしてお使いになるのはもちろん、
いすなどを置いてここで朝食を取るのも最高ですね!


〇リビング、中庭を眺めながらキッチンで作業できます♪

〇主寝室は大人気のウォークインクローゼット付き♪
1坪のシンプルな形なのでとても使いやすいです!
お部屋が物であふれる心配がないのでスッキリとした印象に


平屋が憧れ!と思っている方に人気のプランです!

坪数 25坪 延床
面積
82.81m²
間取り 2LDK 家族
構成
二人暮らし

閉じる

×閉じる